Перфектното разпределение започва от правилното място

Увеличи потенциала на своето жилище

Отключи потенциала на своето жилище

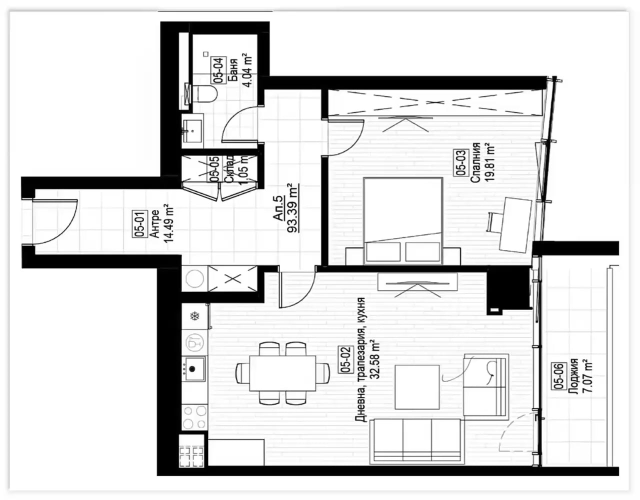
Правилното архитектурно и функционално разпределение е първата и най-важна крачка за качествено обитаване на всяко пространство. Във всеки интериор има различни проблеми, но и скрити възможности с огромен потенциал. Усвояването на всеки сантиметър и правилното разпределение на пространството, гарантират покачване на стойността на имота, подобряване на визията, на интериора и повишаване качеството на живот в него.

От 15 годишния си опит в интериорно студио NADESIGN, ние видяхме нуждата от достъпно място, където всеки който купува жилище или прави ремонт да може, да си позволи професионална помощ - бързо, лесно и качествено. Така решихме да създадем STAYAТА, фокусирана към най-важното в един интериор - функцията.

В STAYATA сме убедени, че всеки има право да живее удобно!

Поръчайте Сега

Изпрати чертеж

Избери своята квадратура

Сподели ни

Попълнете анкетата

Дай ни 3 дни

Избери най-доброто разпределение
Функционално разпределение

Какво трябва да направите:

1. Качете чертежа си:
Изпратете архитектурния план на жилището — PDF, JPG или снимка на чертеж направен на ръка.

*Ако това ви затруднява, наш екип може да заснеме интериора, като допълнителна услуга.

2. Попълнете въпросника, опишете нуждите си:
Разкажете ни, какво искате да промените — повече място за съхранение, по-функционална кухня, допълнителен кът за работа или ви липсва някакво помещение.

3. До 3 работни дни ще ви изпратим чертежи с до 3 различни варианта на функционално разпределение, с нагледно показани предимства и недостатъци на всеки план и кратко видео с промените.

* В случай че харесвате дадени зони от единия чертеж и други от другия чертеж, пишете ни тук и до 24 часа ще ви изпратим финалния варуант.

Изберете вашата квадратура

Изберете вашата квадратура:

Апартамент от 20 до 60 кв.м

Апартамент от 20 до 60 кв.м

117.34 лв BGN

Апартамент от 20 до 60 кв.м

117.34 лв BGN
Апартамент от 61 до 120 кв.м.

Апартамент от 61 до 120 кв.м.

156.46 лв BGN

Апартамент от 61 до 120 кв.м.

156.46 лв BGN
Апартамент от 121 до 160 кв.м.

Апартамент от 121 до 160 кв.м.

176.00 лв BGN

Апартамент от 121 до 160 кв.м.

176.00 лв BGN

Допълнителни Услуги

Set of architectural floor plans on a white background

СМР Чертежи

Ако искате да сте напълно готови за основните етапи на ремонтната дейност, се възползвайте от нашата опция за чертежи на Електро и ВИК - всичко, което трябва да направите, е да ги разпечатате и предадете на майсторите си. Така ще сте сигурни, че всеки извод ще си е на правилното място.

Този етап спестява много време и пари, и риск от необмислени грешки.

Ремонтна дейност

За да сте напълно спокойни и в последната, и най-рискована стъпка в изпълнението на вашия проект, в Stayata ще намерите строителна бригада, с която сме реализирали успешно десетки проекти. Ние ще поемем организацията и отговорността всички предложени идеи да се реализират коректно по време на ремонта. Така ще ви спестим време и риска от недоразумения и неправилно изпълнение.

поискайте оферта

1.Функция

2D план - Защото всеки има право да живее удобно

2.Визия

3D план - За да сте сигурни, че ви харесва

3.Реализация

ЕЛ и ВИК планове - За да си сигурен в резултата

Очаквайте скоро

За Нас

STAYATA е проект на интериорно студио NaDesign. С нашия 15 години опит в интериорния дизайн, ние знаем важността на това да се усвои правилно всеки сантиметър от пространството. Ние сме убедени, че функцията не трябва да бъде лукс, а достъпна възможност за всеки. Нашият опит показва, че почти всяко пространство има възможност за оптимизация, която променя качеството на живот в него.

Свържете се с нас днес и нека заедно да отключим потенциала на вашето жилище!

Често Задавани Въпроси

Ако нямам архитектурен чертеж, мога ли да направя чертеж направен на ръка от мен?

Да, можете да направите скица с точните размери, на която да са отразени всички стени, врати и прозорци със съответните размери.

Не мога да направя сам чертеж на апартамента си. Може ли вие да го заснемете, за да съм сигурен, че няма да задам грешни рамери?

Да, можеем да заснемем апартамента в удобно за Вас време. Цената на услугата е 25€.

Мога ли да получа чертеж, който е комбинация от двата варианта, които сте ми изпратили и трябва ли да доплатя за него?

Да, изпратете ни мейл с описание кои зони искате да комбинираме и до 24 часа ще Ви изпратим финалният чертеж, без да доплащатате нищо.

Кога мога да си поръчам СМР чертежите?

СМР чертежи може да се заявят по мейла, веднага щом изберете финалния чертеж на разпределение. Ще ги получите до 3 дни след направеното плащане.

Можете ли да ми препоръчате майстори за ремонта?

Да, ние работим с препоръчани бригади за ЕЛ, ВИК и Обработка на стени и тавани. Ако искате да се възползвате, обадете ни се.